A 5 tons per hour drying production line was delvered to USA.
Pubdate:2021-01-25
A 5 tons per hour drying production line was delvered to USA.










Pubdate:2021-01-25


On December 9, 2025. CORINMAC's automatic packing and palletizing line equipment was successfully loaded and delivered to Uzbekistan. The whole set of automatic packing and palletizing line equipment including automatic bag placer for packing machi
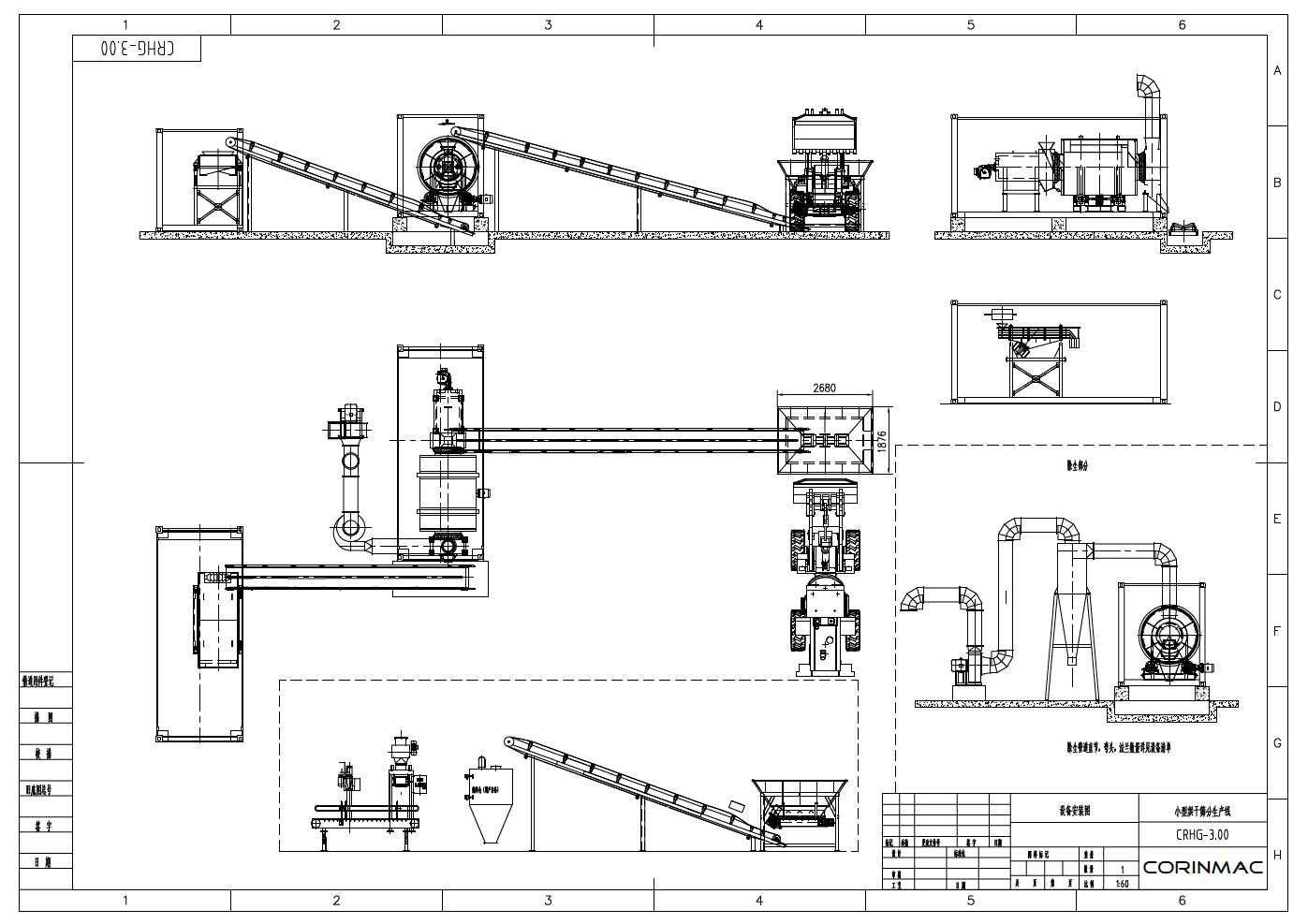
25/12/10On December 6, 2025. CORINMAC's customized dry mortar production equipment has been successfully loaded and shipped to Kyrgyzstan. Dry mortar production equipment shipped this time including ton bag un-loader, screw conveyor, 1.5 cubic meter weigh
25/12/08