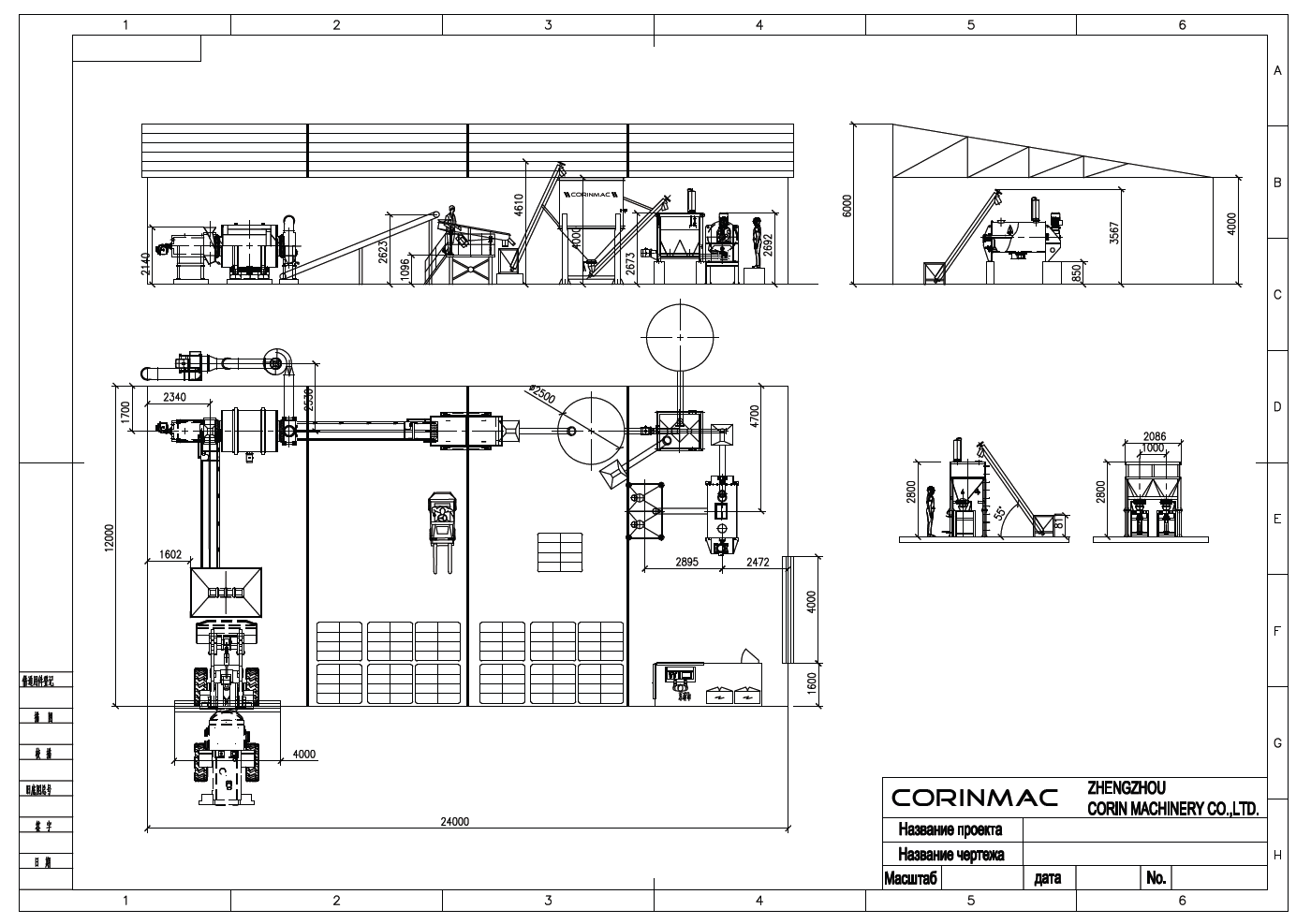
A complete production line of dry building mixtures be shipped to Astana, a sand drying plant is included.
Pubdate:2021-04-01
On April 1, 2021, we shipped a complete line for the production of dry building mixtures to Astana, a sand drying plant is included.
Layout drawing of dry building mixes complete production line

























