Drying equipment and 3tph dry mortar equipment sent to Vladivostok port
Pubdate:2019-11-08
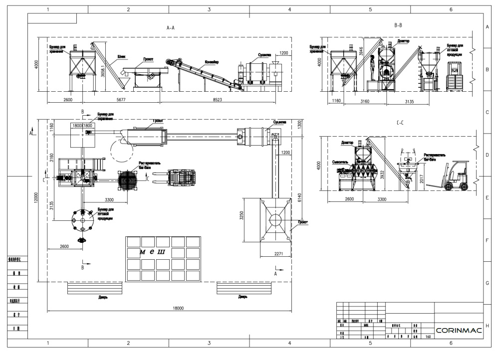
This production line consists of Drying part and a Mixing part.
Drying part:
The raw material is put into the hopper by the loader, and then sent to the three-pass dryer by the belt conveyor below the hopper. The dried material is sent to the classiying screen by the belt conveyor to obtain the finished materials with different particle sizes. Finished materials are sent to the buffer warehouse via a belt conveyor for mixing.
Mixing part:
The raw materials are sent into the weighing warehouse in turn according to the set formula by the screw conveyor. After the batching is completed, the centralized control cabinet gives a discharge instruction. The materials enter the mixing machine by self-flow. After the materials are mixed, they are sent to the finished product warehouseby the screw conveyor. There is a finished product packaging machine under the warehouse. The packaging machine fills the finished product into the valve pocket by a preset weight to complete the production.
The entire production line has a capacity of 3 tons per hour and is arranged as follows:
Layout of 3tph dry mortar production line













